07.05.2026

Как выбрать оптимальную площадь коттеджа?

Выбор площади будущего дома — это баланс между желаемым комфортом, финансовыми возможностями и стоимостью дальнейшей эксплуатации. В 2026 году архитекторы рекомендуют ориентироваться не на "престижный метраж", а на функциональное использование каждого квадратного метра. В этой статье мы разберем, какая площадь подойдет именно вашей семье, на примере проектов КП «Сердце Сибири».

Планировка компактного дома

Рис. 1. Эффективное зонирование небольшого пространства — ключ к комфорту.

Диапазон 50–100 кв. м

Дома такой площади идеально подходят для семей из 2–3 человек, молодых пар или в качестве гостевого дома. Главное преимущество — высокая скорость строительства  и минимальные затраты на отопление. Так например, срок строительства домов 50 квадратных метров составляет от 3 до 6 месяцев.

В каталоге «Сердце Сибири» этот сегмент представлен хитами:

  • Сканди 54 (53.2 м²) — идеальное решение для тех, кто ценит высокие потолки и окна в пол.
  • Куршавель 65 (65.3 м²) — классический одноэтажный дом с просторной кухней-гостиной.
  • Сканди 89 (89.1 м²) — дом, в котором на 89 метрах удалось разместить 3 спальни и 2 санузла.
«Маленькая площадь дисциплинирует архитектора. Здесь нет места бесполезным коридорам, каждый метр должен иметь назначение».

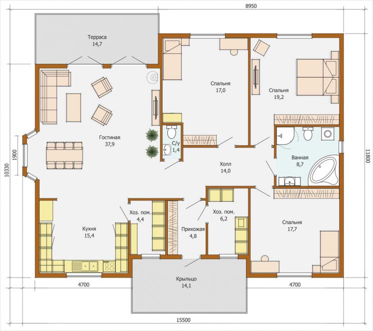
Диапазон 100–150 кв. м.

Это самый популярный запрос в 2026 году. Такая площадь позволяет с комфортом разместить семью из 4–5 человек, выделив каждому личное пространство, и при этом не переплачивать за избыточные метры.

Проект дома 120 кв м

Рис. 2. Оптимальный проект для семьи с двумя детьми: мастер-спальня и две детские.

Примеры из нашего каталога:

  • Куршавель 104 (103.6 м²) — функциональный дом с тремя спальнями и двумя отдельными входами.
  • Куршавель 141 (140.6 м²) — двухэтажный проект для тех, кто хочет четкого разделения на общественную и приватную зоны.

Диапазон 150–200 кв. м.

Дома свыше 150 метров выбирают большие семьи или те, кому необходимы дополнительные функциональные помещения: кабинет, тренажерный зал, сауна или большая гостевая комната. В 2026 году такие дома часто проектируются с интегрированными гаражами.

Планировка дома 180 кв м

Рис. 3. Просторный дом позволяет реализовать сложные планировочные решения, такие как "второй свет".

Ключевые факторы выбора

При выборе площади ответьте на 4 вопроса:

  1. Состав семьи: Сколько человек будет жить постоянно? Нужно ли предусматривать комнаты для гостей или пожилых родителей?
  2. Образ жизни: Работаете ли вы из дома (нужен кабинет)? Часто ли принимаете гостей?
  3. Бюджет: Помните, что стоимость коробки — это только 40% затрат. Отделка и инженерия больших площадей растут пропорционально.
  4. Участок: Большой дом на маленьком участке может лишить вас приватности и места под сад.

Сводная таблица площадей

Площадь Рекомендовано для Пример проекта
5080 м² 1–2 чел., гостевой дом Сканди 54, Куршавель 65
90120 м² 3–4 чел. (семья с 1-2 детьми) Сканди 89, Куршавель 104
120150 м² 4–5 чел. (семья с 2-3 детьми) Куршавель 141
150200 м² Большие семьи, доп. функции Индивидуальные проекты

В КП «Сердце Сибири» мы поможем вам подобрать проект, который не станет обузой в обслуживании, но обеспечит максимальный комфорт для каждого члена семьи. Приезжайте на экскурсию, чтобы почувствовать масштаб наших домов вживую!

Получите презентацию
Видеопрезентация и PDF-файл
Записаться на экскурсию
Заказать звонок
Оставьте заявку и менеджер свяжется с вами